SBZ45T yandan kilitlemeli sert contalı sürgülü vana, sayaç sert contalı kilitleme vanası olarak da bilinir, ünitede kullanılan su sistemine dayanır, faturayı zamanında ödemez veya boru hattı genellikle su kaybından kaynaklanan su hırsızlığı durumunda meydana gelir ve başarılı vana ürünlerinin araştırma ve geliştirme ve tasarımı. Yan kilitleme sert contalı sürgülü vana, iyi hırsızlık önleme performansına, kolay anahtarlamaya, kararlı sızdırmazlık etkisine, uzun hizmet ömrüne ve benzerlerine sahiptir.
Ürün Özellikleri
- Yandan kilitlemeli sert contalı sürgülü vana, suyu kısıtlama olmaksızın kullanan, su ücretlerini tahsil etmeyi reddeden, su hırsızlığı ve sızıntısı yapan ve hatta boru hattı vanalarına ve diğer olaylara zarar veren bazı birimler veya kişiler için etkili bir yönetim aracıdır.
- Vana iyi bir hırsızlık önleme işlevine sahiptir, anahtarın herhangi bir konumundaki sürgülü vana kendiliğinden kilitlenebilir.
- Sürgülü vanayı açmak ve kapatmak için yapılandırılmış özel bir alet gereklidir.
Ürün Parametresi
Ürün Modeli | SBZ45T-16Q |
Valf gövde malzemesi | sfero döküm |
Valf malzemesi | Sfero döküm + pirinç |
Nominal basınç | ≤1,6Mpa |
Uygulanabilir ortam | su ve benzeri |
Uygulanabilir sıcaklık | ≤80°C |
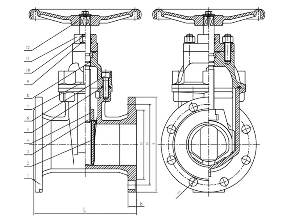
Ürün Boyut Referansı

bir cadde | L | D | D1 | D2 | b | f | z-d |
DN40 | 174 | 150 | 110 | 88 | 16 | 3 | 4-18 |
DN50 | 174 | 160 | 125 | 100 | 16 | 3 | 4-18 |
DN65 | 192 | 180 | 145 | 120 | 18 | 3 | 4-18 |
DN80 | 203 | 195 | 160 | 135 | 20 | 3 | 8-18 |
DN100 | 235 | 215 | 180 | 155 | 20 | 3 | 8-18 |
DN125 | 251 | 245 | 210 | 185 | 22 | 3 | 8-18 |
DN150 | 265 | 280 | 240 | 210 | 24 | 3 | 8-23 |
DN200 | 295 | 335 | 295 | 265 | 26 | 3 | 12-23 |
















