D373W қатты тығыздалатын вафльды көбелек клапаны дәл J-тәрізді эластикалық тығыздау сақинасы мен үш ексцентрлі көпқабатты металл қатты тығыздау құрылымын пайдаланады. Ол металлургия, энергетика, мұнай химиясы, су жабдықтау және кәріз, сондай-ақ муниципалдық құрылыс саласындағы өнеркәсіптік құбыр желілерінде ортаның температурасы 325 °C-тан аспайтын жағдайда кеңінен қолданылады. Бұл клапан сұйықтық ағынын реттеу және оны тоқтату үшін қызмет етеді.
Өнімнің сипаттамалары
- Бұл клапан үш ексцентрлі тығыздау құрылымын қолданады, бұл отырғызылатын бет пен диск арасындағы тозуды іс жүзінде жояды. Оның өздігінен қатаңдайтын тығыздау функциясы бар, ол жұмыс істеген сайын тиімділігін арттырады.
- Мөр сақинасы тот баспайтын болаттан жасалған, металлдың қатты мөрі мен серпімді мөрдің қос артықшылықтарын біріктіреді. Ол төмен және жоғары температуралық жағдайларда тамаша тығыздау өнімділігін қамтамасыз етеді, коррозияға төзімді және ұзақ қызмет ету мерзіміне ие.
- Дискінің тығыздау беті кобальт негізіндегі қатты қорытпалы қаптамалық дәнекерлеуді қолданады, бұл тозуға төзімділікті және ұзақ қызмет ету мерзімін қамтамасыз етеді.
- Үлкен өлшемді баттерфляй клапандар торлы құрылымды қолданады, бұл оларға жоғары беріктік, үлкен ағындық аудан және төмен ағындық кедергіні қамтамасыз етеді.
Өнімнің сипаттамалары
Өнім моделі | D373W-16P |
Валв корпусының материалы | 304 тот баспайтын болат |
Номиналды қысым | ≤1,6 МПа |
Қолданылатын орта | Су, бу, мұнай өнімдері және т.б. |
Жұмыс температурасы | ≤325°C |
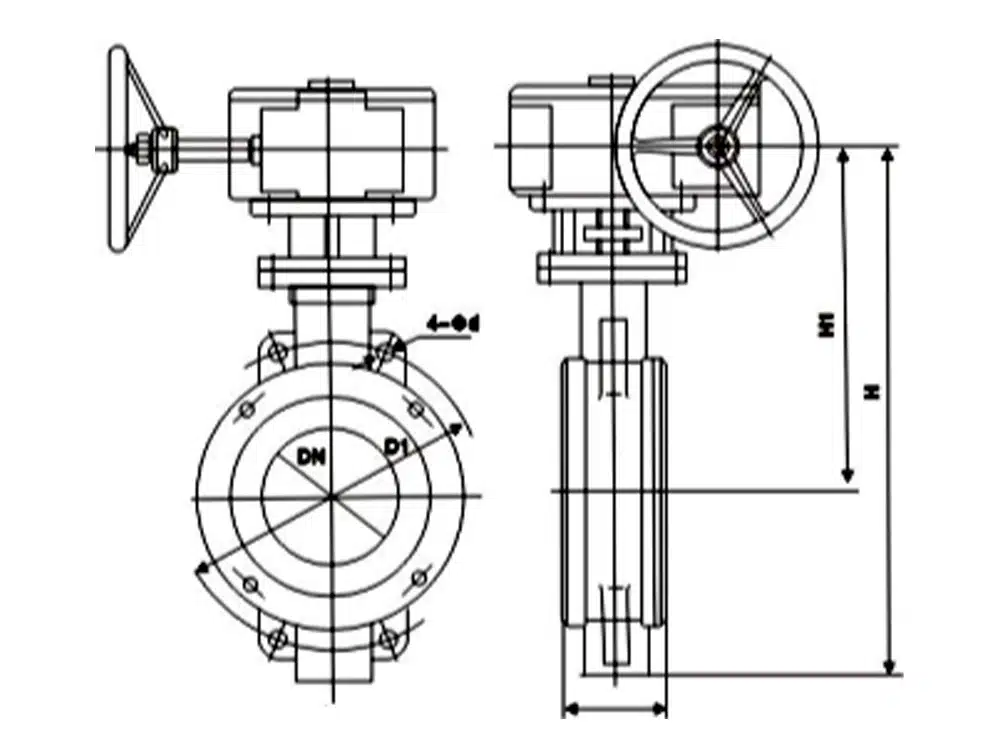
Өнім өлшемдеріне сілтеме

DN | L | H1 | H | 1-күн | n-d |
50 | 43 | 255 | 350 | 125 | 4-18 |
65 | 46 | 280 | 370 | 145 | 4-18 |
80 | 49 | 285 | 380 | 160 | 8-18 |
100 | 56 | 310 | 420 | 180 | 8-18 |
125 | 64 | 310 | 460 | 210 | 8-18 |
150 | 70 | 315 | 555 | 240 | 8-22 |
200 | 71 | 380 | 605 | 295 | 12-22 |
250 | 76 | 460 | 680 | 355 | 12-26 |
300 | 83 | 475 | 825 | 410 | 12-26 |
350 | 92 | 510 | 900 | 470 | 16-26 |
400 | 102 | 550 | 980 | 525 | 16-30 |
450 | 114 | 590 | 1030 | 585 | 20-30 |
500 | 127 | 610 | 1105 | 650 | 20-33 |
600 | 154 | 660 | 1310 | 770 | 20-36 |
700 | 165 | 730 | 1435 | 840 | 24-36 |
800 | 190 | 810 | 1605 | 950 | 24-39 |
900 | 203 | 930 | 1745 | 1050 | 28-39 |
1000 | 216 | 1020 | 1885 | 1170 | 28-42 |


















