LHS743X düşük dirençli geri akış önleyici, esas olarak şehir suyu temini ve diğer su tedarik birimleri için, boru hattı basınçlı su ile kesinlikle sınırlı olduğunda genel kirlilik birimlerine sadece tek yönlü hidrolik kontrol kombinasyon cihazı akabilir. İşlevi, geri akış kirliliğinin amacını önlemek için boru hattındaki ortamın herhangi bir çalışma koşulu altında geri akışını veya sifon geri akışını kesinlikle önlemektir. Ürün küçük bir gürültüye, düşük akış direncine, sorunsuz ve hassas çalışmaya, kolay kurulum ve bakıma, uzun hizmet ömrüne ve diğer önemli özelliklere sahiptir. Çeşitli inşaat, yangın, endüstriyel ve madencilik, hastaneler, bahçeler, su arıtma ve su şebekesindeki diğer sistemlerde yaygın olarak kullanılan geri akış kirliliği durumlarını önlemesi gerekir.
Ürün Özellikleri
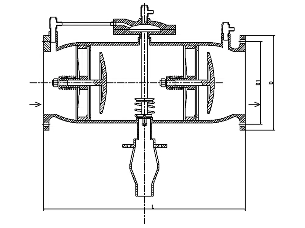
- Ön ve arka olmak üzere iki çek valf ve bir ara otomatik tahliyeden oluşur.
- Ön ve arka çek valflerden sızıntı olması durumunda, suyu otomatik olarak tahliye edebilir ve geri akışı engelleyebilir, geri akış kirliliğini kesinlikle önler ve yukarı akış boru hattındaki su kalitesini korur.
- Ultra düşük su kaybı, önemli enerji tasarrufu: kafa kaybı 0,04Mpa'dan azdır.
- Hava izolasyonu, otomatik drenaj: geri akış durumunda, ana valf kapatıldığında, drenaj otomatik olarak açılır, ara hazne basınç tahliyesi sıfırdır, hava izolasyonu veya sıfır basınç izolasyonu arasındaki ana valf yukarı ve aşağı akış, izolasyon performansı güvenli ve güvenilirdir.
- Arazi ve malzeme tasarrufu, esnek kurulum: küçük şekil, hafiflik, yapı uzunluğu mevcut benzer ürünlerin sadece% 30'udur; yatay veya dikey olarak monte edilebilir.
Ürün Parametresi
Ürün Modeli | LHS743X-16C |
Valf gövde malzemesi | karbon çeliği |
Nominal basınç | ≤1,6Mpa |
Uygulanabilir ortam | su ve benzeri |
Uygulanabilir sıcaklık | ≤80°C |
Ürün Boyut Referansı

bir cadde | L | D | D1 | n-∅d |
DN40 | 360 | 150 | 110 | 4-19 |
DN50 | 360 | 165 | 125 | 4-19 |
DN65 | 400 | 185 | 145 | 4-19 |
DN80 | 415 | 200 | 160 | 8-19 |
DN100 | 500 | 220 | 180 | 8-19 |
DN125 | 550 | 250 | 210 | 8-19 |
DN150 | 600 | 285 | 240 | 8-23 |
DN200 | 800 | 340 | 295 | 12-23 |
DN250 | 900 | 405 | 355 | 12-27 |
DN300 | 1000 | 460 | 410 | 12-27 |
















