วาล์วผีเสื้อแบบแผ่นเวเฟอร์สำหรับงานสุขอนามัยรุ่น D71X-10P ได้รับการออกแบบมาเป็นพิเศษสำหรับการควบคุมของเหลวในกระบวนการที่ต้องการความสะอาดสูง ชิ้นส่วนหลัก เช่น ตัววาล์วและก้านวาล์ว ผลิตจากสแตนเลสสตีล 304 เป็นหลัก ซึ่งให้ความต้านทานการกัดกร่อนและความทนทานต่ออุณหภูมิสูงได้อย่างยอดเยี่ยมวัสดุซีลใช้ซิลิโคนเกรดอาหาร ซึ่งไม่เป็นพิษ ไม่มีกลิ่น และตรงตามข้อกำหนดด้านสุขอนามัย มีโครงสร้างกะทัดรัด ทำความสะอาดง่าย ใช้งานได้อย่างยืดหยุ่น และมีประสิทธิภาพการซีลที่ยอดเยี่ยม วัสดุนี้ถูกใช้อย่างแพร่หลายในอุตสาหกรรมที่ต้องการมาตรฐานความสะอาดสูง เช่น อาหาร เครื่องดื่ม ยา และเครื่องสำอาง
ข้อมูลจำเพาะของสินค้า
รุ่นสินค้า | D71X-10P |
วัสดุของตัววาล์ว | เหล็กinox 304 |
วัสดุแผ่นวาล์ว | เหล็กinox 304 |
วัสดุยางบุ | ยางซิลิโคน |
ความดันตามชื่อ | ≤1.0 เมกะปาสคาล |
สื่อที่ใช้ได้ | น้ำ, แก๊ส, น้ำมัน, และผลิตภัณฑ์น้ำมัน, เป็นต้น |
อุณหภูมิในการทำงาน | ≤100°C |
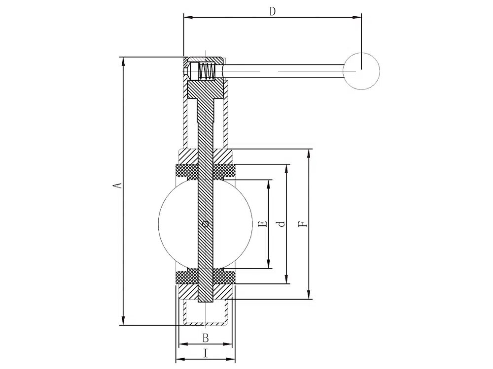
ขนาดอ้างอิงของผลิตภัณฑ์

บอร์ | I | B | E | d | F |
| D |
DN25 | 32 | 28 | 25.5 | 42 | 60 | 131 | 111 |
DN32 | 38.5 | 36 | 30.5 | 54 | 73 | 157 | 130 |
DN40 | 41 | 38 | 37.5 | 62 | 80 | 164 | 130 |
DN50 | 44 | 41 | 48 | 72 | 94 | 190 | 148 |
DN65 | 46.5 | 44 | 64 | 87 | 108 | 204 | 148 |
DN80 | 49 | 45 | 78 | 96 | 126 | 223 | 148 |
DN100 | 53.5 | 50 | 96 | 119 | 158 | 263 | 148 |
DN125 | 59 | 55 | 121 | 145 | 173 | 288 | 218.5 |
DN150 | 61 | 55 | 148 | 182 | 208 | 311 | 248 |














