Pencegah aliran balik resistansi rendah LHS743X terutama digunakan untuk pasokan air kota dan unit pasokan air lainnya ke unit polusi umum ketika secara ketat terbatas pada air tekanan pipa hanya dapat mengalirkan perangkat kombinasi kontrol hidraulik satu arah. Fungsinya untuk benar-benar mencegah media dalam pipa dari aliran balik atau menyedot aliran balik dalam kondisi kerja apa pun, untuk menghindari tujuan pencemaran aliran balik. Produk ini memiliki kebisingan kecil, hambatan aliran rendah, pengoperasian yang halus dan sensitif, pemasangan dan perawatan yang mudah, masa pakai yang lama, dan fitur penting lainnya. Banyak digunakan dalam berbagai jenis konstruksi, kebakaran, industri dan pertambangan, rumah sakit, taman, pengolahan air dan sistem lain dalam jaringan pasokan air perlu mencegah terjadinya pencemaran arus balik.
Fitur Produk
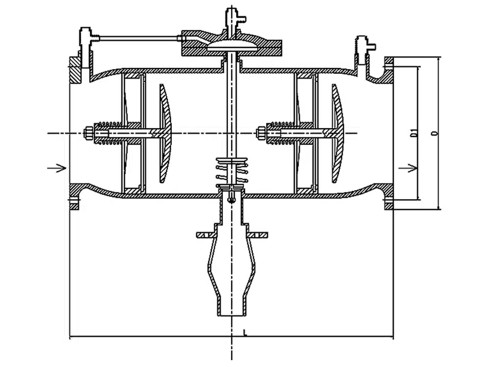
- Terdiri dari dua katup periksa, depan dan belakang, dan pengurasan otomatis perantara.
- Jika terjadi kebocoran dari katup periksa depan dan belakang, katup ini dapat secara otomatis mengalirkan air dan memblokir aliran balik, secara ketat mencegah polusi aliran balik dan melindungi kualitas air di pipa hulu.
- Kehilangan air yang sangat rendah, penghematan energi yang signifikan: kehilangan head kurang dari 0,04Mpa.
- Isolasi udara, drainase otomatis: jika terjadi kondisi refluks, ketika katup utama ditutup, saluran pembuangan secara otomatis terbuka, pelepas tekanan ruang perantara adalah nol, katup utama di hulu dan hilir antara isolasi udara atau isolasi tekanan nol, kinerja isolasi aman dan andal.
- Penghematan lahan dan material, pemasangan fleksibel: bentuk kecil, ringan, panjang struktur hanya 30% dari produk sejenis yang ada; dapat dipasang secara horizontal atau vertikal.
Parameter Produk
Model Produk | LHS743X-16C |
Bahan badan katup | baja karbon |
Tekanan nominal | ≤1.6Mpa |
Media yang berlaku | air dan sebagainya |
Suhu yang berlaku | ≤80°C |
Referensi Ukuran Produk

jalan raya | L | D | D1 | n-∅d |
DN40 | 360 | 150 | 110 | 4-19 |
DN50 | 360 | 165 | 125 | 4-19 |
DN65 | 400 | 185 | 145 | 4-19 |
DN80 | 415 | 200 | 160 | 8-19 |
DN100 | 500 | 220 | 180 | 8-19 |
DN125 | 550 | 250 | 210 | 8-19 |
DN150 | 600 | 285 | 240 | 8-23 |
DN200 | 800 | 340 | 295 | 12-23 |
DN250 | 900 | 405 | 355 | 12-27 |
DN300 | 1000 | 460 | 410 | 12-27 |


















